
Ο ΠΟΛΥΘΑΛΑΜΟΣ ΤΑΦΟΣ
Ο πολυθάλαμος τάφος
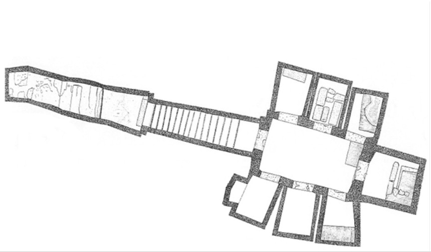
Σε μικρή απόσταση έξω από το ανατολικό τείχος της πόλης, στην περιοχή της εισόδου του σημερινού οικισμού ανασκάφηκε ένα υπόγειο ταφικό συγκρότημα, μήκους 25 μ. λαξευμένο στο φυσικό βράχο της περιοχής.
Αποτελείται από μία κεντρική αίθουσα στις 3 πλευρές της οποίας ανοίγονται επτά συνολικά λαξευτοί θάλαμοι με θολωτή οροφή και επιχρισμένους τοίχους. Στην κεντρική αίθουσα οδηγούσε μακρύς υπόγειος διάδρομος, ένα τμήμα του οποίου ήταν κλιμακωτό. Ο διάδρομος διευκόλυνε την ταφή περισσοτέρων ατόμων αυτής της οικογένειας, η οποία έθαπτε εδώ τα μέλη της από το τέλος του 4ου ως τις αρχές του 1ου αιώνα π.Χ. Παρά τη σύληση του μνημείου, ήδη από την αρχαιότητα, δεκάδες πήλινα αγγεία και ειδώλια βρέθηκαν σπασμένα στα δάπεδά του και στα διαλυμένα κτιστά βάθρα πάνω στα οποία πρέπει να τοποθετούνταν νεκρικές κλίνες ή κιβωτίδια. Θραύσματα επίχρυσων στεφανιών, σιδερένια και χάλκινα αντικείμενα μαρτυρούν για τον πλούτο της λείας που αποκόμισαν οι ιερόσυλοι.






Σχόλια - Facebook Comments